Disclaimer:
Die hier angezeigten Bilder und Informationen wurden von den Nutzern selbst hochgeladen. Die Nutzer sind selbst für die Inhalte verantwortlich.
Altes Feuerwehrfahrzeug MB1120AF darf seinen Ruhestand als Langzeitreisemobil verbringen und mit uns die Welt bereisen...
| Fahrzeughersteller und Typ | MB 1120 AF |
|---|---|
| Name des Halters | L&S Howald |
| Land der Zulassung | Schweiz |
| Webseite | noch im Aufbau |
| Baujahr | 12.1990 |
| Fahrzeug steht zum Verkauf? | Nein |
| Motortyp | OM 366 LA |
|---|---|
| Hubraum | 5955 |
| Zylinderzahl | 6 |
| Motorleistung in PS | 210 |
| Drehmoment | ca. 650 bei 1400 |
| Radformel (4x2, 4x4, 6x6, 8x8) | 4x4 |
|---|---|
| Radstand | 3400 |
| Anzahl der zugelassenen Sitze | 2 |
| Reifengröße | 385/65 R 22.5 |
| Tankkapazität | 400l. |
| Dieselfilter | Ja |
| Allrad zuschaltbar oder permanent | zuschaltbar |
| Differenzialsperren | ja |
| Aufbauhersteller | Ormocar |
|---|---|
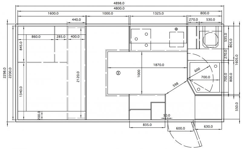
| Kabinenmaße (Innen) | 4800 |
| Kabinenmaße Abmessungen (außen) | 4930 |
| Material der Kabine | Gfk |
| Art und Stärke der Dämmung | 49 |
| Anzahl der Schlafplätze | 2 |
| Fenster | KTC |
| Zwischenrahmen | 4- Punkt |
| Kocher | Thetford Triplex 700 Series |
|---|---|
| Gasinstallation | ja |
| Hersteller und Typ des Kühlschrank | Dometic Kompressor- Kühlbox |
|---|
| Stromspannung im Chassis | 12V & 24V |
|---|---|
| Stromspannung im Aufbau | 12V |
| Ladewandler 24-12V | ja |
| 110V / 230V im Aufbau? | Ja |
| Wechselrichter | ca. 1700W |
| Batteriekapazität im Aufbau | ca. 300 Ah |
|---|---|
| Batterietyp | AGM |
| Batterieladegerät für Aufbaubatterien | ja |
| Batterieüberwachung | ja |
| Solarkapazität | ca. 400 Ah |
|---|---|
| Solarregler | ja |
| Brennstoffzelle | Nein |
| Generator | ja |
| Hersteller und Typ der Heizung | Trauma combi D6E |
|---|---|
| Warmwasseraufbereitung | ja |
| Wasserfiltersystem | ja |
|---|---|
| Volumen der Frischwassertanks | 360l. |
| Volumen der Abwassertanks | 90l. |
| Hersteller und Art der Toilette | Dometic |
|---|
| Heckträger | ja |
|---|---|
| Dachgepäckträger | ja |
| Stauboxen | ja |
| Außenkochstelle | ja |