Disclaimer:
Die hier angezeigten Bilder und Informationen wurden von den Nutzern selbst hochgeladen. Die Nutzer sind selbst für die Inhalte verantwortlich.
Balu, Mercedes Vario 815 D Doppelkabine Ex-Feuerwehr
| Fahrzeughersteller und Typ | Mercedes Vario 815 D Doppelkabine Baureihe T2W |
|---|---|
| Name des Halters | Mercedes Benz |
| Land der Zulassung | noch im Umbau |
| Baujahr | 2004 |
| Fahrzeug steht zum Verkauf? | Nein |
| Motortyp | OM 904 LA |
|---|---|
| Hubraum | 4249 cm³ |
| Zylinderzahl | 4 |
| Motorleistung in PS | 110 kW (150 PS) 2200/min Euro III |
| Drehmoment | ? |
| Sonstiges | |
|
Automatik-Getriebe Allison AT 542 Achsübersetzung i=3,154 (leider etwas langsam) | |
| Zulässiges Gesamtgewicht | laut alten Papieren 7,5 to, aber FZ ist ja im Umbau |
|---|---|
| Radformel (4x2, 4x4, 6x6, 8x8) | 4 x 2 |
| Radstand | 3700 mm |
| Anzahl der zugelassenen Sitze | derzeit noch 3, also Fahrersitz + Beifahrer-Sitzbank, geplant ist 2 Drehsitze + hinten VSR 2er Sitzbank |
| Reifengröße | 205/75 R 17,5 |
| Felgen | Steilschulterfelgen 6.00 x 17,5 |
| Reifenart | wird neu, event. auch größere, falls wir kein anderes Differenzial beschaffen können. |
| Tankkapazität | 2 x 55 L |
| Dieselfilter | Nein |
| Differenzialsperren | Ja hinten |
| Aufbauhersteller | Eigenbau auf vorhandener Alupritsche vom Feuerwehr-Aufbau |
|---|---|
| Kabinenmaße (Innen) | an fertiger Holzverkleidung B x L x H = 2136 x 2976 x 2090 mm |
| Kabinenmaße Abmessungen (außen) | AK Sandwich und ab OK Alupritsch B x L x H = 2322 x 3316 x 2270 mm |
| Material der Kabine | Industrie-Sandwich mit Micro-Linierung |
| Art und Stärke der Dämmung | 60 mm PIR-Schaum |
| Anzahl der Schlafplätze | 2 |
| Fenster | 3, davon 1 x Küche, 1 x Bett Fußteil in Fahrtrichtung rechts, 1 x Bett FZ-Rückseite |
| Zwischenrahmen | ohne |
| Sonstiges | |
| Wir bauen die Kabine fest auf die Pritsche, unser Karrosseriebauer hat das Fahrerhaus ab der B-Säule im Dach- und Rückwanbereich ausgeschnitten. Am Übergang haben wir für eine "leichte" Verschränkung (auf jede Seite 100 mm) eine Sonderlösung aus Alukantteilen und einer Balgdichtung von Accordeonseal vorgesehen. Über dem Kabinendach wird ein Aludeckel aus Riffelblech den Aufbau ab der B-Säule überdecken. Der Deckel hat ein wenig Abstand, so daß die Verschränkung möglich ist. Wir gehen nicht ins grobe Gelände und sind nach einigen Test- und Meßfahrten der Meinung, daß das funktioniert. | |
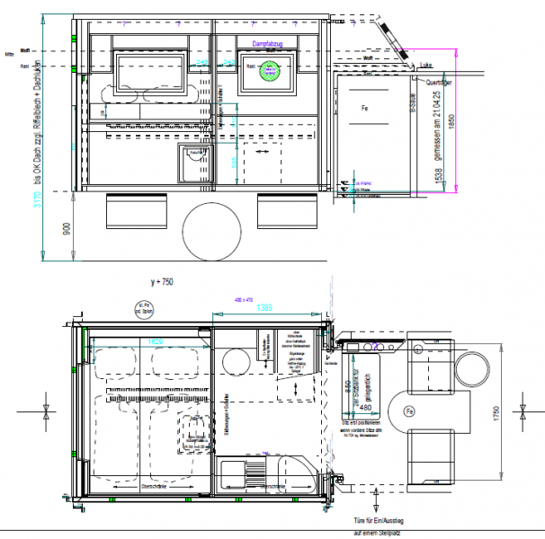
| Erläuterung Grundriss | |
|---|---|
| Doka wird in Verbindung mit Kabine durchgängig bewohnt. Die Sitze sollen als Drehsitze umgerüstet werden. Der Tisch soll bewusst vom Armaturenbrett nach hinten laufen, damit wenn wir an einem schönen Platz stehen, beide den Blick durch die große Frontscheibe haben. Hinten sind noch 2 weitere Sitzplätze durch eine VSR-Sitzkonsole geplant, damit wir unsere beiden Enkel od. event. einen Fahrgast mitnehmen können. Der Zugang von außen ist die hintere Türe auf der Beifahrerseite, also kein weiterer Zugang in die Kabine oder Treppe erforderlich. Hinten im Kabinenaufbau ist in Fahrtrichtung links ein Kleiderschrank, der Kühlschrank und übereinander angeordnet noch Apothekerschränke geplant. Dahinter ein Bad-Waschbecken. D.h. wenn jemand das Bad/WC benutzt wird der Vorhang zwischen Kabine und Fahrerhaus geschlossen und dort hinten bleibt dann viel Platz. Auf der rechten Seite kommt die Küche, ganz hinten das Bett. Unterm Bett wird das WC ausgezogen, welches einen Trittfesten Deckel bekommt. Die Höhe ist genau die halbe Höhe zum Bett. Unter dem Bett ist auch mein Elektro-Klavier welches ich nach vorne zum spielen ausziehen kann. Ja und unterm Bett sind Stauraum und Platz für die Stromtechnik. |
| Material des Möbelbaus | Massivholz |
|---|---|
| Sonstiges | |
| Wir haben Erlen gefällt und sägen lassen, haben Birke gefällt und selbst gesägt und kaufen noch etwas Kiefer dazu. Der Ausbau soll in Eigenleistung Schreinermäßig erfolgen in massiver, solider Ausführung. Wir möchten eine Kombination aus bräunlich gebeiztem Erle und/oder Birke mit weiß lasierten Hölzern | |
| Kocher | Geplant ist ein Kombigerät mit 2 - 3 Flammenkocher und einem Backofen |
|---|
| Hersteller und Typ des Kühlschrank | Wir planen ca. 120 - 140 L ohne Eisfach |
|---|---|
| Sonstiges | |
| Vorraussichtlich machen wir noch einen kleinen richtigen Gefrierschrank mit ca. 30-40 L, welcher -18 bis -22°C kann, damit wir tiefgerorenes Transportieren können. | |
| Stromspannung im Chassis | 24 V Fahrzeugseitig |
|---|---|
| Stromspannung im Aufbau | 12 V geplant |
| 110V / 230V im Aufbau? | Nein |
| Wechselrichter | nein |
| Sontiges | |
| Wir haben seit 2017 einen ausgebauten Sprinter. Tatsächlich benötigen wir nur 230 V für die Nespresso-Maschine. Wir wollen mit der Elektro-Installation nur soviel wie nötig machen unter dem Motto weniger ist mehr. Wir machen deshalb einen Filterkaffee mit Gas, und der ist in ca. 5 Minuten fertig. | |
| Batteriekapazität im Aufbau | Geplant sind ca. 500 - 600 Ah |
|---|---|
| Batterietyp | Geplant ist AGM mit Vlies |
| Batterieüberwachung | so einfach wie möglich |
| Sonstiges | |
| Wir verzichten bewusst auf High-Tech Lifepo, sind auch im Norden unterwegs und möchten deshalb so einfach wie möglich, nur + & - und sonst nichts, keine Ballancaner, keine Elektronik, keine Batteriewärmung, keine App.... | |
| Solarkapazität | Geplant ca. 600 KwP |
|---|---|
| Brennstoffzelle | Nein |
| Generator | nein |
| Sonstiges | |
| Wir planen noch einen normalen Landstrom-Anschluß zum einspeisen und/oder Batterie laden. | |
| Hersteller und Typ der Heizung | Geplant ist 2 x Autotherm 2 kW |
|---|---|
| Warmwasseraufbereitung | Wassertopf auf Gasflamme und in Waschbecken gießen |
| Fahrerhausheizung | alles zusammen mit den beiden Autotherm |
| Sonstiges | |
| Die Lösung mit 2 Heizungen finden wir super sinnvoll. Das haben wir aus Uli's Buch entnommen. | |
| Erläuterung Gasanlage | |
|---|---|
| 2 x 5 Kg Alugasflaschen für Propan, wegen der Nord-Reisen in einen Staukasten unter der Pritsche. Propan soll laut meiner Recherche bis max. minus 42°C funktionieren. |
| Wasserführung | Kanister und Tauchpumpen |
|---|---|
| Wasserfiltersystem | Silber-Ionen-Gitter |
| Volumen der Frischwassertanks | vermutlich 4 x 12 Liter Kanister |
| Volumen der Abwassertanks | geplant ist 2 x 12 Liter Kanister |
| Sonstiges | |
| Da wir auch im Norden bei - 20 bis -30° C unterwegs waren und wieder sein werden, hat sich diese simple Technik seit 2017 bestens bewährt. Wir können die Kanister überall füllen, wir brauchen keinen Auslaufschacht, sondern können die Kanister tragen oder mit einem Sackkarren bewegen. Die Kanister sind deshalb immer im Warmen. Wenn wir an einem Ziel sind wo wir in die Hütte gehen können wir in kürzester Zeit mit wenigen Handgriffen das Fahrzeug wasserlos machen und nichts kann einfrieren. Das betrifft auch das Porta-Potti. | |
| Hersteller und Art der Toilette | Porta-Potti |
|---|---|
| Kapazität Fäkalientank | ? glaube 12 L |
| Sonstiges | |
| Wir nutzen das Porta-Potti je nach Reise und Entsorgungsmöglichkeit auch nur für das kleine Geschäft. Das große Geschäft machen wir auch manchmal in die Tüte und entsorgen wie eine Hundetüte. | |
| Heckträger | nichts geplant |
|---|---|
| Dachgepäckträger | nichts geplant |
| Stauboxen | Außen sind Stauboxen von der Feuerwehr vorhanden |
| Außenkochstelle | In eine Staubox unter der Pritsche, wo sowieso der Gaskasten draus wird |
| Markise | ist geplant |