Disclaimer:
Die hier angezeigten Bilder und Informationen wurden von den Nutzern selbst hochgeladen. Die Nutzer sind selbst für die Inhalte verantwortlich.
It took several years from starting to dream about an expedition camper to the actual decision to get one... ...after deciding to turn dream into reality we spent probably another 5 years of research before buying our STEYR base truck from EXCAP, and the another year before deciding on the cabin builder KRUGXP. The cabin building process took around a year with several iterations of optimizations, from adding a motorcycle rack to installing an outdoor kitchen...plus some add-ons like an air condition for the drivers cab or a redesign of the spare tire holder... Our truck has been named after Guhonda, a 500 pound mountain gorilla silverback. We saw this amazing creature close-up-close during a mountain gorilla trekking tour in Rwanda and thought that our STEYR has a similar 'attitude' .
| Fahrzeughersteller und Typ | STEYR 12m18 |
|---|---|
| Name des Halters | DIRK LIEPOLD |
| Land der Zulassung | United States |
| Webseite | www.exd.earth |
| Baujahr | 1987 |
| Fahrzeug steht zum Verkauf? | Nein |
| Motortyp | Steyr WD 612.74 diesel |
|---|---|
| Hubraum | 6.6-liter turbocharged engine |
| Zylinderzahl | 6 |
| Motorleistung in PS | 230 (Original 180) |
| Drehmoment | 630 Nm at 1200 / min |
| Sonstiges | |
|
EXCAP Intercooler Bosch fuel injector Stainless steel exhaust | |
| Radformel (4x2, 4x4, 6x6, 8x8) | 4X4 |
|---|---|
| Radstand | 350 |
| Anzahl der zugelassenen Sitze | 2 |
| Reifengröße | 14.00R20 |
| Felgen | Gabo Split-rim |
| Reifenart | Continental |
| Tankkapazität | 800 Liter PE diesel tanks with sepa filter and heater |
| Dieselfilter | Ja |
| Sonstiges | |
|
8 Gears plus 1 crawler ZF Gear Box with Gear Reduction (Automatic continually gearbox lubrication upgraded by EXCAP) Air-suspension seats (EXCAP) Hydraulic disc brakes Heated mirrors (EXCAP) Aircondition (EXCAP) High flow cyclone air filter system (EXCAP) Koni shocks (EXCAP) Stronger cab shocks (EXCAP) | |
| Allrad zuschaltbar oder permanent | Permanent |
| Differenzialsperren | Locking Differentials: front, center & rear |
| Aufbauhersteller | KRUGXP |
|---|---|
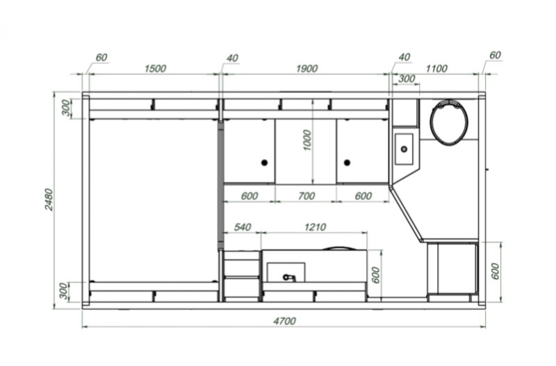
| Kabinenmaße (Innen) | 4580 x 2360 x 2080 |
| Kabinenmaße Abmessungen (außen) | 4700 x 2480 x 2200 |
| Material der Kabine | PU 60mm |
| Art und Stärke der Dämmung | 60 |
| Anzahl der Schlafplätze | 3 |
| Fenster | 4 |
| Zwischenrahmen | 4-Point Subframe |
| Sonstiges | |
|
4 Real Glas KrugXP Windows with KCT insect screens 1 KCT Roof Hatch Electric Insect Screen for entrance door | |
| Material des Möbelbaus | Real wood veneered facades Oak finish |
|---|---|
| Sonstiges | |
| Dark Grey CORIAN Kitchen Surface | |
| Kocher | WEBASTO X100 Diesel Induction cooker with Altitude compensation |
|---|---|
| Gasinstallation | N/A |
| Sonstiges | |
| MIELE Combi Electric Oven/Microwave | |
| Hersteller und Typ des Kühlschrank | Indel-Webasto (INOX) 195 Liter Fridge with separate freezer compartment |
|---|
| Stromspannung im Chassis | 24 |
|---|---|
| Stromspannung im Aufbau | 24, 12, 230 |
| 110V / 230V im Aufbau? | Nein |
| Wechselrichter | Mastervolt MassSine Ultra 24/4000W |
| Batteriekapazität im Aufbau | 2 x Mastervolt Mli Ultra 24V 5000 Wh |
|---|---|
| Batterietyp | LithiumIon |
| Batterieladegerät für Aufbaubatterien | Mastervolt ChargeMaster 24V/100A Mastervolt |
| Batterieüberwachung | MasterVolt |
| Solarkapazität | 4 x 300 LG Solar panels with 1200Wp total |
|---|---|
| Solarregler | SolarChargeMaster SCM-60 MPPT |
| Brennstoffzelle | Nein |
| Generator | No |
| Hersteller und Typ der Heizung | Eberspaecher Hydronic Diesel heater with automatic Altitude compensation |
|---|---|
| Warmwasseraufbereitung | Indel-Webasto Isotherm 25 Liter warm water boiler (230V) |
| Fahrerhausheizung | Radiator in cabin underneath table |
| Sonstiges | |
|
Heated floor in main cabin Towel Warmer in toilet Heat Exchanger (Engine Preheat or Cabin & Water Preheat) | |
| Erläuterung Gasanlage | |
|---|---|
| N/A |
| Wasserfiltersystem | 2 Pre-Fill Filters, 1 Seagull Filter for Freshwater |
|---|---|
| Volumen der Frischwassertanks | 340 Liter |
| Volumen der Abwassertanks | 180 Liter |
| Sonstiges | |
|
Faucet in Bathroom Rainshower and Handshower in Bathroom Faucet in Kitchen DrinkingWater Faucet in kitchen Outside Shower (Hot/Cold) Outside Kitchen Faucet (Hot/Cold) | |
| Hersteller und Art der Toilette | DOMETIC Saneo Cassette toilet with ceramic bowl |
|---|---|
| Kapazität Fäkalientank | N/A |
| Heckträger | KRUG custom motorcycle carrier with spare tire holder and sand ladder and electric winch |
|---|---|
| Dachgepäckträger | EXCAP Roof-rack with 2 cargo boxes |
| Stauboxen | 2 KRUG Custom Boxes behind rear axle - plus storage box in front of right tank |
| Außenkochstelle | KRUGXP custom outside kitchen with Sink & Electro Induction Cooktop |
| Markise | Omnistor 1200 |